cnjpetr2009@126.com 010-6543-6703
驶入式料架( Drive-in Rack )
此种型式的料架其栈板的存放方式系堆高机从里层的位置开始存放至最前面的位置 ( 如图 1-13 、 1-14 所示 ) 。其配置方式可以两组驶入式料架背对背安置或单一组靠着墙壁,堆高机的进出皆使用相同的信道,储存密度非常好,但存取性则受到相当限制,不易做到先进先出的管理。由于堆高机在整个料架里面,因此驾驶者必须非常小心。驶入式料架之纵深以 3 ~ 5 列最为理想,堆栈四层最容易管理,适合少样多量的产品。
 
     其特点为:
 
     1.储存密度高,存取性差。
 
     2.适合少样多量的物品储存。
 
     3.高度可达 10 m 。
 
     4.存取物品受存放位置先后顺序之限,不易做到先进先出。
 
     5.不适合太长或太重货品。
  
   

 
 
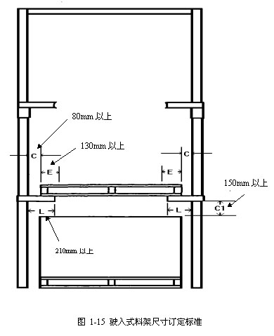
      驶入式料架尺寸订定标准如图 1-15 所示。
 
     (a) 承载物与悬臂的间隔, Cl ≧ 150 mm
 
     (b) 栈板与支柱的间隔, C ≧ 80 mm
 
     (c) 栈板与悬臂搭载的宽度, E = C + 50 mm
 
     (d) 悬臂长度, L = C + E
 
 

 
 
责任编辑:全文成
中日物流合作联盟
  • 联盟简介
  • 组织机构
  • 专业委员会
  • 专家委员会
  • 秘书处
  • 中日物流研究联盟
  • 联盟简介
  • 组织机构
  • 专业委员会
  • 专家委员会
  • 秘书处
  • 中日物流与供应链研修班
  • 第二届中日物流与供应链管理师资研修班

    (2021年05月30日--06月04日)

  • 日本物流与供应链20讲(2020年第一期)

    (2020年11月21日始)

  • 北京秦藤物流沙龙
  • 关于发起举办“北京秦藤中日物流沙龙”的通告
  • 中日物流论坛
  • 中日商贸往来与物流体系建设研讨会

    (2016年03月27日)

  • 中日经贸关系发展与自贸区建设研讨会

    (2014年01月18日)

  • 中日经济往来与物流发展研讨会

    (2013年04月02日)

  • 中日经济交流与物流发展研讨会

    (2012年05月12日)

  • 中日冷链物流论坛
  • 第二届中日冷链物流国际论坛(2021)

         ---冷链物流体系建设及其技术设备

    (2021年10月29日--31日)

  • 第一届中日冷链物流发展国际论坛

         ---农产品 · 食品冷链物流与生活品质

    (2019年07月06--07日)

  • 中日物流与供应链研究论坛
  • 第一届中日物流与供应链研究国际论坛

           ---供应链研究与现代流通体系建设

    (2021年04月16--18日)

  • 中日农产品流通论坛
  • 第一届中日农产品流通国际论坛(2021)

    ---生鲜农产品冷链物流体系建设及其技术设备

    (2021年08月00--00日)